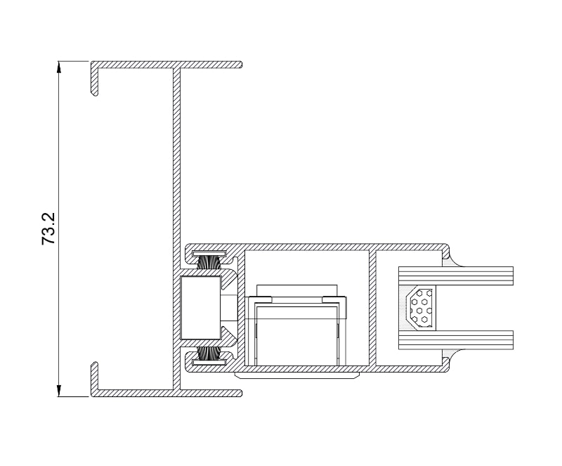
G-90

Sistema corredera en línea sin RPT con corte a 90a que se caracteriza por su adaptación a cualquier solución constructiva planteada. Gracias a los marcos fijos diseñados con las características de la serie V-8000 de 45, permite incorporar aperturas practicables, con oscilo, travesaños y demás aperturas de esta serie.
Descargables
Para acceder a esta documentación, contacta con nosotros:

Ensayos de comportamiento

* Para más información consultar en ficha técnica

Permeabilidad al aire

UNE-EN 1027:2000; UNE-EN 12208:2000

Clase 3

Estanqueidad al agua

UNE-EN 1027:2017; UNE-EN 12208:2000

5A

Resistencia al viento

UNE-EN 12211:2000; UNE-EN 12210:2000

C2

Transmitancia térmica Uf

UNE-EN ISO 10077-2:2020

6,6 W/m²k

Transmitancia térmica Uw

UNE-EN ISO 10077-1:2008

≥3,18 W/m²k *

Aislamiento acústico Rw (C;Ctr)

Valor de vidrio calculado para ventana de 2 hojas

34 (-1;-3)

Características técnicas

Ancho 3.200 mm
Alto 1.700 mm

Herraje en línea 90 Kg/hoja

19 mm

1,5 mm

Tipos de apertura