Edificación

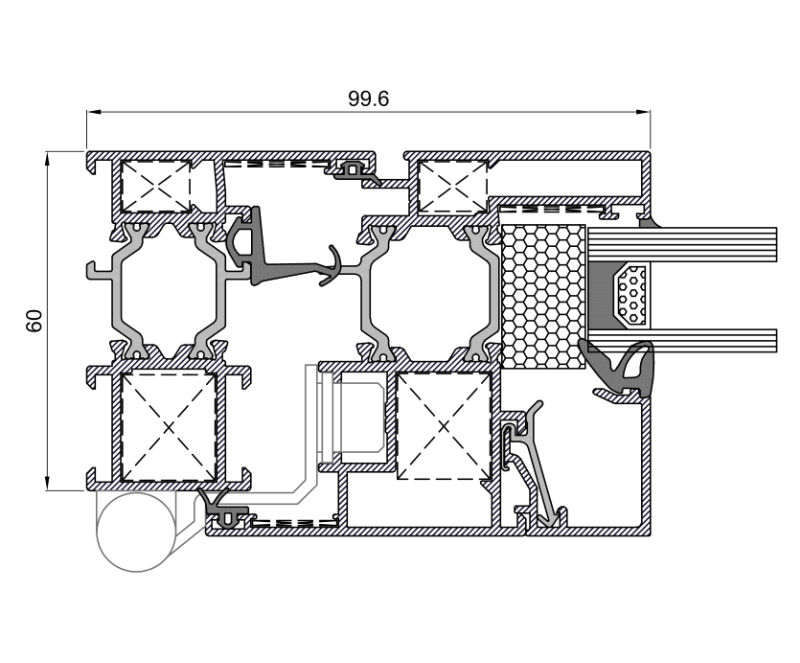
XP-60+

Sistema de ventana practicable de 60 mm de canal 16 que debido a su doble escuadra se pueden realizar todos los cerramientos de ventanas y puertas con las mayores garantías.
Descargables
Para acceder a esta documentación, visita la intranet de Extrugasa:
Ensayos de comportamiento

* Para más información consultar en ficha técnica.

Permeabilidad al aire

UNE-EN 1026:2017; UNE-EN 12207:2017

Clase 4

Estanqueidad al agua

UNE-EN 1027:2017; UNE-EN 12208:2000

E300

Resistencia al viento

UNE-EN 12211:2017; UNE-EN 12210:2017

C5

Transmitancia térmica Uf

UNE-EN ISO 10077-2:2020

2,4 W/m²k

Transmitancia térmica Uw

UNE-EN ISO 10077-1:2017

1,1 ≥ W/m²k *

Aislamiento acústico Rw (C;Ctr)

Valor de vidrio calculado para ventana de 2 hojas

48 (-1;-4)

Características técnicas

Ancho 1.600 mm
Alto 2.600 mm

Ancho 1.600 mm
Alto 2.600 mm

Herraje visto 100 kg/hoja
Herraje oculto 130 kg/hoja

Vidrio espesor máx. 46 mm
Vidrio espesor mín. 6 mm

1,5 mm

Tipos de apertura

Acabados

Anodizado

Natural

Efecto madera

Embero

Efecto madera

Nogal

Lacado

Blanco

Lacado

Negro

Lacado

Gris antracita texturizado

Más acabados

Posibilidad bicolor
Anodizado
Lacado en polvo
Efecto madera

Accesorios

Manillas

Essence Square

Manillas

Essence Round